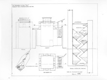
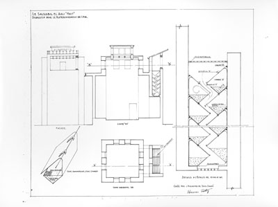
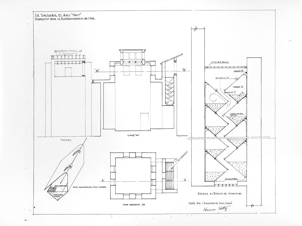
Wind Catch Designs
Fathy, Hassan

Download157512_cp.jpg (93.99Kb)
Date
1899-1989Description
design drawing, "Le Salsabil el Aali 'Havt' - Dispositif pour le Rafreshissment de L'Air": design drawing (a wind catch tower which cools the air entering it by passing it over pools of water suspended in the tower)
Type of Work
Architectural drawing; Design drawingSubject
Architectural drawings, Architecture --Egypt, Wind catchers, Air ducts, Architecture --Designs and plans
Rights
Rights Statement
All rights reserved
Item is Part of
141398